Working Hours Monday - Friday 08:00-16:00
Toll Free 1800.899.900

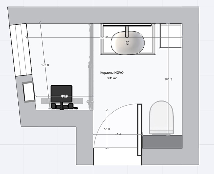
Izrada novog tlocrta

facebook instagram

Ukoliko ste u procesu renovacije nekretnine i trebate prijedlog kako maksimalno iskoristiti prostor, izrada novog tlocrta na temelju postojećeg bi mogla biti usluga koja vam je potrebna. Izrada predloženog rješenja radi se na temelju tlocrta postojećeg stanja. Rukom nacrtane mjere su obično dovoljne, ukoliko ne postoje, izlazi se na objekt radi izmjere. Uključuje novi tlocrtni plan i raspored prostorija s dispozicijom namještaja.

Može se koristiti i kod renovacija zasebnih dotrajalih prostorija kao što su kupaonice kod kojih se osim osvježavanja elemenata želi povećati i efikasnost korištenja prostora promjenom rasporeda. Za maksimalnu iskoristivost malih prostora nekad je presudno iskustvo koje dizajneri imaju kao i poznavanje dostupnih rješenja na tržištu, a svakako su vrijedne različite varijante koje se mogu nacrtati i otvoriti Vas za nove ideje za koje niste bili svjesni da su izvedive.

Staro Novo
Zatraži ponudu